|
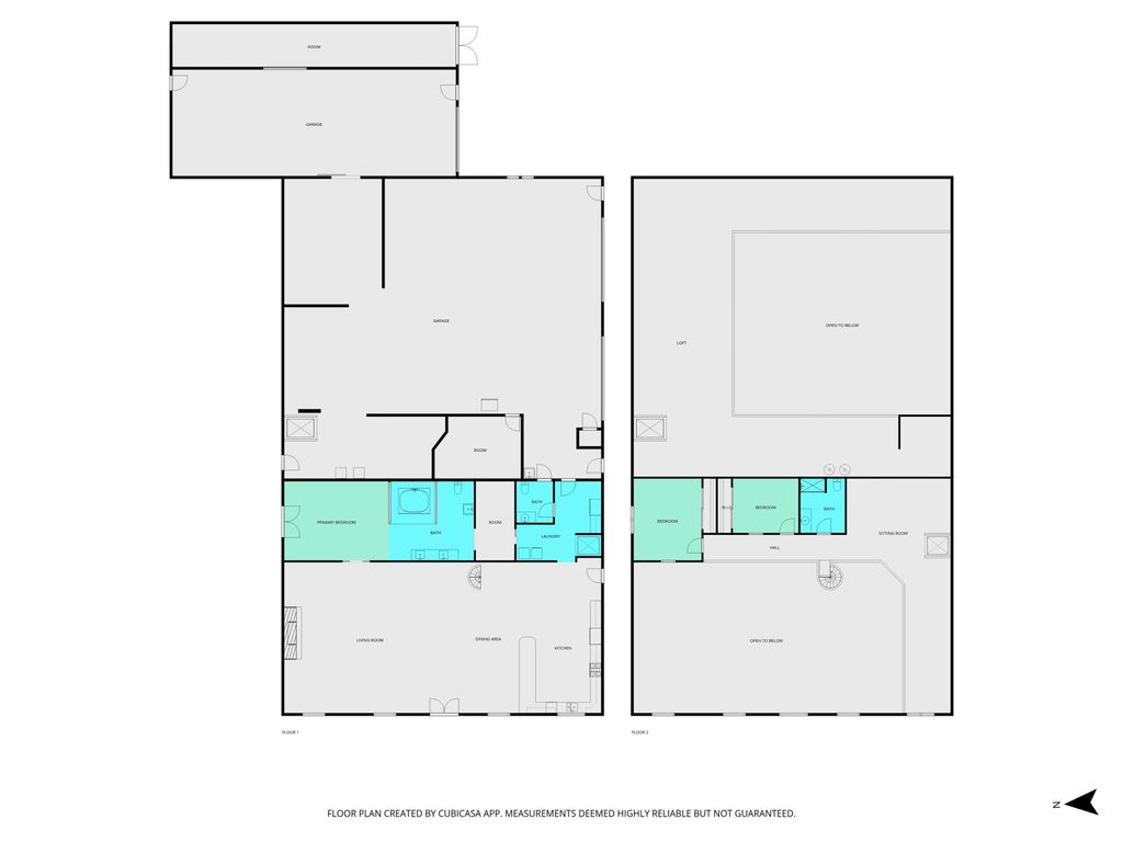
Discover a rare blend of residential comfort and industrial capability in this expansive pole barn-style home. Thoughtfully designed for wheelchair accessibility, the property features two elevators, wide-open living spaces, and seamless transitions throughout. Situated on 4.5 acres of open land, the property includes 3,633 SF of spacious, open-concept living quarters tailored for wheelchair use, 2 bedrooms(with potential for more), 2.5 bathrooms, 200 amp single-phase electrical service with a dedicated backup generator. The kitchen was recently updated in 2022, with new appliances in 2024. The 20 ft wide front porch is perfect for watching those Indiana sunsets. In the shop you will find a designated office space, 5500 SF of space for fabrication, 4 jib cranes, 400 amp single-phase service, 200 amp 3-phase inverter, and 480 V transformer. Whether you're seeking a turnkey live/work setup, a high-powered shop with residential comfort, or a unique property with accessibility at its core, this listing delivers unmatched versatility and value.
| DAYS ON MARKET | 31 | LAST UPDATED | 4/15/2026 |
|---|---|---|---|
| TRACT | None | YEAR BUILT | 2003 |
| GARAGE SPACES | 3.0 | COUNTY | White |
| STATUS | Active | PROPERTY TYPE(S) | Single Family |
| School District | Tri-County School Corp. |
|---|---|
| Elementary School | Tri-County |
| Jr. High School | Tri-County |
| High School | Tri-County |
| PRICE HISTORY | |
| Prior to Feb 5, '26 | $975,000 |
|---|---|
| Feb 5, '26 - Apr 15, '26 | $875,000 |
| Apr 15, '26 - Today | $825,000 |
| ADDITIONAL DETAILS | |
| AIR | Ceiling Fan(s), Central Air |
|---|---|
| AIR CONDITIONING | Yes |
| APPLIANCES | Dishwasher, Disposal, Dryer, Electric Water Heater, Exhaust Fan, Gas Range, Microwave, Refrigerator, Washer, Water Heater, Water Softener Owned |
| CONSTRUCTION | Metal Siding |
| EXTERIOR | Balcony |
| FIREPLACE | Yes |
| GARAGE | Attached Garage, Yes |
| HEAT | Forced Air, Propane |
| INTERIOR | Ceiling Fan(s), Elevator, Laminate Counters, Master Downstairs, Open Floorplan |
| LOT | 4.5 acre(s) |
| LOT DIMENSIONS | 316x976 |
| PARKING | Garage Door Opener, Heated Garage, Garage, Attached |
| SEWER | Septic Tank |
| STORIES | 2 |
| STYLE | Two Story |
| SUBDIVISION | None |
| TAXES | 1185.36 |
| WATER | Private, Well |
MORTGAGE CALCULATOR
TOTAL MONTHLY PAYMENT
0
P
I
*Estimate only
Listed with Lindsey Deno, F.C. Tucker/Shook
The data relating to real estate for sale on this web site comes in part from the Internet Data exchange (“IDX”) program of the Indiana Regional MLS®. IDX information is provided exclusively for consumers’ personal, non-commercial use, that it may not be used for any purpose other than to identify prospective properties consumers may be interested in purchasing. Data is deemed reliable but is not guaranteed accurate by the MLS.
Copyright© 2026 IRMLS. All rights reserved.
Last Updated On: 5/16/26 9:40 PM PDT
Walk Score provided by walkscore.com
Copyright© 2026 IRMLS. All rights reserved.
Last Updated On: 5/16/26 9:40 PM PDT
Walk Score provided by walkscore.com
This IDX solution is (c) Diverse Solutions 2026.
| SATELLITE VIEW |
| / | |
We respect your online privacy and will never spam you. By submitting this form with your telephone number
you are consenting for Rachel
Henry to contact you even if your name is on a Federal or State
"Do not call List".
